產品展示
攔汙除汙係列
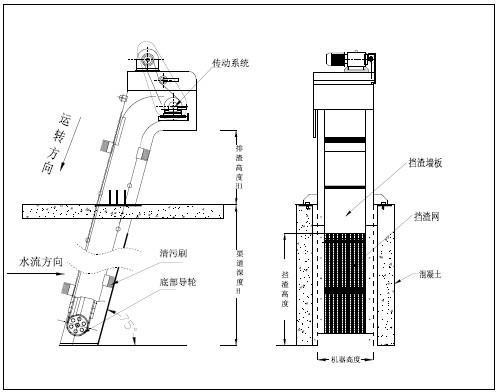
WBF轉刷網蓖式格柵除汙機
發布時間:2018-07-02 點擊次數:5460 次

概述
WBF轉刷網蓖式格柵除汙機適用於城市汙水處理、自來水行業、電廠進水口,同時也可作為紡織、食品加工、造紙、皮革等行業生產工藝中不可缺少的專業設備,是目前技術穩定的固液分離設備之一。
工作原理
WBF轉刷網蓖式格柵除汙機主要由驅動裝置、機架、主軸、柵網、托渣板、固定板刷、回轉刷及牽引鏈組成。在電機驅動下,通過減速機減速後,帶動鏈輪與鏈條運動,固定在回轉鏈條上板刷沿柵網網麵由下而上移動,清掃網麵並帶走汙物,汙物運送至頂部時,大部分靠重力自行落至排渣都,少量附著在固定板刷上的汙物被轉動的回轉刷清除掉,完成除汙過程,液體則通過柵網的間隙流過,整個工作過程連續進行。
特點與應用
轉刷網蓖式格柵除汙機能對水中的果皮、雜草、懸浮物等容易纏繞難以卸料的雜質進行可靠的攔截和清除,有效應用於果汁製品廠、果醬製品廠、農作物製品廠等。相對於耙齒形式的細格柵,本產品優點:傳動部件相對較少,工作可靠;采用便拆式結構,維護簡單;設備有自潔機構,不易堵塞,不易被垃圾纏繞、容易卸料。
外形示意圖
WBF轉刷網蓖式格柵除汙機適用於城市汙水處理、自來水行業、電廠進水口,同時也可作為紡織、食品加工、造紙、皮革等行業生產工藝中不可缺少的專業設備,是目前技術穩定的固液分離設備之一。
工作原理
WBF轉刷網蓖式格柵除汙機主要由驅動裝置、機架、主軸、柵網、托渣板、固定板刷、回轉刷及牽引鏈組成。在電機驅動下,通過減速機減速後,帶動鏈輪與鏈條運動,固定在回轉鏈條上板刷沿柵網網麵由下而上移動,清掃網麵並帶走汙物,汙物運送至頂部時,大部分靠重力自行落至排渣都,少量附著在固定板刷上的汙物被轉動的回轉刷清除掉,完成除汙過程,液體則通過柵網的間隙流過,整個工作過程連續進行。
特點與應用
轉刷網蓖式格柵除汙機能對水中的果皮、雜草、懸浮物等容易纏繞難以卸料的雜質進行可靠的攔截和清除,有效應用於果汁製品廠、果醬製品廠、農作物製品廠等。相對於耙齒形式的細格柵,本產品優點:傳動部件相對較少,工作可靠;采用便拆式結構,維護簡單;設備有自潔機構,不易堵塞,不易被垃圾纏繞、容易卸料。
外形示意圖

過水流量計算
過水流量計算——
格柵每小時過水流量:
Q=K*(B-160)*h*V*3600
其中:
Q=過水流量(m³/h);
K=與格柵間隙有關的流量係數(見係數表);
B=格柵機寬(m);
h=柵前水深(m),一般按1m或低於渠深0.3m以上;
V=過流速度,一般取0.6~1m/s。
主要技術參數
過水流量計算——
格柵每小時過水流量:
Q=K*(B-160)*h*V*3600
其中:
Q=過水流量(m³/h);
K=與格柵間隙有關的流量係數(見係數表);
B=格柵機寬(m);
h=柵前水深(m),一般按1m或低於渠深0.3m以上;
V=過流速度,一般取0.6~1m/s。
主要技術參數
過流係數K
| 格柵間隙(mm) | 0.5 | 1 | 2 | 3 | 5 |
| 流量係數K | 0.08 | 0.1 | 0.12 | 0.27 | 0.36 |
注:可以采用插值法得出其他間隙對應K值的近似值。
- 上一篇:HF回轉式格柵除汙機
- 下一篇:ZHG型反撈式格柵除汙機
相關產品





掃一掃
蘇公網安備32028202232133號